Skip To Content

173-173SF S Front Street , 173SF

Columbus, OH 43215
  • $589,900
  • STATUS: Active
  • ON SITE: 15 Days
  • MLS #: 225046262
UPDATED: 30 min ago
$589,900
  • 3
    BEDS
  • N/A
    ACRES
  • 2
    BATHS
  • 1
    1/2 BATHS
  • 1,687
    SQFT
  • $350
    $/SQFT
Type:
Condo
Built:
2008
County:
Area:

School Ratings & Info

School District:

Description

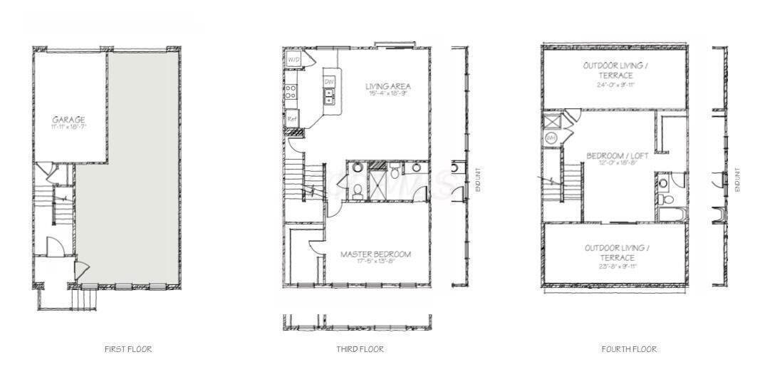
Sophisticated Downtown Living Near the Scioto Mile. This 2-Bedroom Townhome-Style Condo with Exceptional Outdoor Spaces Welcome to an elevated standard of urban living in this beautifully updated 2-bedroom, 2.5-bath townhome-style condo offering 1,687 square feet of refined design and thoughtful detail, perfectly located in the heart of Downtown Columbus, just steps from the Scioto Mile, Bicentennial Park, and the city's premier dining, entertainment, and cultural attractions. This multi-level residence delivers both privacy and presence, with an open-concept main living level anchored by large windows, stylish finishes, and a Juliette-style balcony that brings the outdoors in and adds a sophisticated European touch. The modern kitchen features stainless steel appliances, stone countertops, and abundant cabinetry, designed for both everyday living and effortless entertaining. Upstairs, two spacious en-suite bedrooms offer privacy and comfort, each with two private upper-level balconies on each side of the home. Perfect for morning coffee or unwinding with city views. The primary suite is a tranquil retreat featuring a walk-in closet and a spa-inspired full bath. A first-floor flex space adds versatility for a home office, fitness area, or creative studio, while updated flooring, designer lighting, and a well-appointed half bath enhance everyday function. Secure garage parking and ample storage complete the package. Whether you're seeking a full-time residence or a lock-and-leave downtown retreat, this home offers the perfect blend of luxury, flexibility, and walkability in one of Columbus' most sought-after urban enclaves. Live above the ordinary.

Monthly Payment Calculator



© 2026 Columbus Board of Realtors. All rights reserved. IDX information is provided exclusively for consumers' personal, non-commercial use and may not be used for any purpose other than to identify prospective properties consumers may be interested in purchasing. Information is deemed reliable but is not guaranteed accurate by the MLS or LifePoint Real Estate | Cutler Real Estate. Data last updated: 2026-01-13T15:52:08.59.
www.lpohio.com/homes/171596436
Print Image

173-173SF S Front Street , 173SF Columbus, OH 43215

  • Price: $589,900
  • Status: Active
  • On Site: 15 Days
  • Updated: 30 min ago
  • MLS #: 225046262
3
Beds
2
Baths
1
½ Baths
N/A
Acres
1,687
SQFT
$350
$/SQFT
2008
Built
Neighborhood:
The Annex At River South / Downtown
County:
Franklin
Area:
Columbus
School District:
Columbus Csd 2503 Fra Co.
Property Description
Sophisticated Downtown Living Near the Scioto Mile. This 2-Bedroom Townhome-Style Condo with Exceptional Outdoor Spaces Welcome to an elevated standard of urban living in this beautifully updated 2-bedroom, 2.5-bath townhome-style condo offering 1,687 square feet of refined design and thoughtful detail, perfectly located in the heart of Downtown Columbus, just steps from the Scioto Mile, Bicentennial Park, and the city's premier dining, entertainment, and cultural attractions. This multi-level residence delivers both privacy and presence, with an open-concept main living level anchored by large windows, stylish finishes, and a Juliette-style balcony that brings the outdoors in and adds a sophisticated European touch. The modern kitchen features stainless steel appliances, stone countertops, and abundant cabinetry, designed for both everyday living and effortless entertaining. Upstairs, two spacious en-suite bedrooms offer privacy and comfort, each with two private upper-level balconies on each side of the home. Perfect for morning coffee or unwinding with city views. The primary suite is a tranquil retreat featuring a walk-in closet and a spa-inspired full bath. A first-floor flex space adds versatility for a home office, fitness area, or creative studio, while updated flooring, designer lighting, and a well-appointed half bath enhance everyday function. Secure garage parking and ample storage complete the package. Whether you're seeking a full-time residence or a lock-and-leave downtown retreat, this home offers the perfect blend of luxury, flexibility, and walkability in one of Columbus' most sought-after urban enclaves. Live above the ordinary.
Exterior Features

Architectural Style [] Attached Garage YN Yes Exterior Features Balcony Foundation Details Block Garage YN Yes Lot Features [] Mid High Rise YN No Parking Features Attached Garage Pool Features []

Interior Features

Basement Crawl Space Basement YN Yes Building Area Total 1687 Cooling Central Air Cooling YN Yes Fireplace Features [] Flooring LaminateCarpet Great Room Yes Heating Electric Heating YN Yes Interior Features [] Laundry Features Electric Dryer Hookup Levels Three Or More Main Level Bedrooms 0 Window Features []

Property Features

Accessible Features No Association Amenities GatedFitness FacilityParkPoolSidewalk Association Fee 350 Association Fee Frequency Monthly Association Fee Includes Lawn CareInsuranceTrash Association YN Yes Auction Online Bidding No Green Energy Efficient [] Listing Terms [] Manufactured Housing No New Construction YN No Other Structures [] Possible Use [] Property Sub Type Condominium Security Features [] Sewer Public Sewer Special Listing Conditions Standard Water Source Public

Listing provided courtesy of Megan Dodderer of Collective House Realty: 614-470-5560.


© 2026 Columbus Board of Realtors. All rights reserved. IDX information is provided exclusively for consumers' personal, non-commercial use and may not be used for any purpose other than to identify prospective properties consumers may be interested in purchasing. Information is deemed reliable but is not guaranteed accurate by the MLS or LifePoint Real Estate | Cutler Real Estate. Data last updated: 2026-01-13T15:52:08.59.
 
https://bt-photos.global.ssl.fastly.net/columbus/orig_boomver_1_225046262-2.jpg https://bt-photos.global.ssl.fastly.net/columbus/orig_boomver_1_225046262-2.jpg https://bt-photos.global.ssl.fastly.net/columbus/orig_boomver_1_225046262-2.jpg
Logo
LifePoint Real Estate | Cutler Real Estate
168 South State St.
Westerville OH, 43081