Skip To Content

638 N Fountain Avenue

Springfield, OH 45504
  • $6,000
  • STATUS: Active
  • ON SITE: 150 Days
  • MLS #: 225031167
UPDATED: 54 min ago
$6,000
  • 0
    BEDS
  • 0.17
    ACRES
  • 0
    BATHS
  • 0
    1/2 BATHS
Type:
Commercial-Lease
County:
Area:

School Ratings & Info

Description

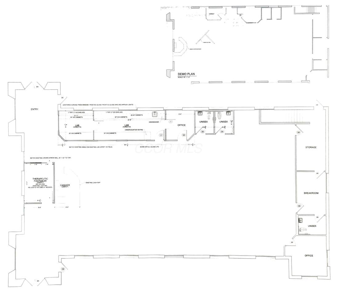
Originally constructed in 2005, 5,780 SF of this freestanding commercial building offers a flexible layout and highly visible corner presenceperfectly suited for medical, office, or retail use. Formerly home to the well-known Madison Avenue Pharmacy, the space features an on-site compounding pharmacy, making it an ideal opportunity for a medical user looking to establish or expand in the Springfield market. The layout includes a welcoming open-concept area for customer interaction, multiple private offices or consultation rooms, and lab or prep areasallowing for a seamless transition for healthcare professionals, specialty clinics, or therapeutic service providers. With modern construction, including poured concrete and a durable steel roof, the building is both sturdy and low-maintenance. Additional features include additional square footage in the basement for storage ample natural light, and a clean, professional interior aesthetic. Situated on a 0.54-acre lot, the property includes 21 on-site parking spaces, plus adjacent street parking. The 100 feet of frontage on N Fountain Ave and 50 feet on Ward St. Its strategic corner location at a signalized intersection maximizes exposure and accessibility, further supporting its role as a retail anchor in the corridor.



© 2026 Columbus Board of Realtors. All rights reserved. IDX information is provided exclusively for consumers' personal, non-commercial use and may not be used for any purpose other than to identify prospective properties consumers may be interested in purchasing. Information is deemed reliable but is not guaranteed accurate by the MLS or LifePoint Real Estate | Cutler Real Estate. Data last updated: 2026-01-16T06:52:14.6.
www.lpohio.com/homes/167000722
Print Image

638 N Fountain Avenue Springfield, OH 45504

  • Price: $6,000
  • Status: Active
  • On Site: 150 Days
  • Updated: 54 min ago
  • MLS #: 225031167
0
Beds
0
Baths
0
½ Baths
0.17
Acres
County:
Clark
Area:
Springfield
Property Description
Originally constructed in 2005, 5,780 SF of this freestanding commercial building offers a flexible layout and highly visible corner presenceperfectly suited for medical, office, or retail use. Formerly home to the well-known Madison Avenue Pharmacy, the space features an on-site compounding pharmacy, making it an ideal opportunity for a medical user looking to establish or expand in the Springfield market. The layout includes a welcoming open-concept area for customer interaction, multiple private offices or consultation rooms, and lab or prep areasallowing for a seamless transition for healthcare professionals, specialty clinics, or therapeutic service providers. With modern construction, including poured concrete and a durable steel roof, the building is both sturdy and low-maintenance. Additional features include additional square footage in the basement for storage ample natural light, and a clean, professional interior aesthetic. Situated on a 0.54-acre lot, the property includes 21 on-site parking spaces, plus adjacent street parking. The 100 feet of frontage on N Fountain Ave and 50 feet on Ward St. Its strategic corner location at a signalized intersection maximizes exposure and accessibility, further supporting its role as a retail anchor in the corridor.
Exterior Features

Parking Total 24

Interior Features

Building Area Total 6158 Building Area Total1 6158 Heating []

Property Features

Auction Online Bidding No Electric [] Listing Terms [] Owner Pays [] Property Sub Type Retail Sewer [] Special Listing Conditions Standard Tax Annual Amount 7693 Tax Year 2024 Utilities [] Water Source []

Listing provided courtesy of John Mally of NAI Ohio Equities, Realtors: 614-224-2400.


© 2026 Columbus Board of Realtors. All rights reserved. IDX information is provided exclusively for consumers' personal, non-commercial use and may not be used for any purpose other than to identify prospective properties consumers may be interested in purchasing. Information is deemed reliable but is not guaranteed accurate by the MLS or LifePoint Real Estate | Cutler Real Estate. Data last updated: 2026-01-16T06:52:14.6.
 
https://bt-photos.global.ssl.fastly.net/columbus/1280_boomver_2_225031167-2.jpg https://bt-photos.global.ssl.fastly.net/columbus/1280_boomver_2_225031167-2.jpg https://bt-photos.global.ssl.fastly.net/columbus/1280_boomver_2_225031167-2.jpg
Logo
LifePoint Real Estate | Cutler Real Estate
168 South State St.
Westerville OH, 43081